• 青青草狠狠干,青青草黄色在线视频,青青草污下载,青青草视频污版APP下载

    热门页面: 青青草黄色在线视频价格 大型青青草黄色在线视频球 磨机工作原理 青青草黄色在线视频衬板 湿式青青草黄色在线视频 矿石青青草黄色在线视频球 磨机型号 节能青青草黄色在线视频 溢流青青草黄色在线视频
    • 24小时青青草视频污版APP下载热线24小时青青草视频污版APP下载热线 15311826765
    • 添加微信添加微信 13811510145
    • 公司地址公司地址

      山东省烟台市福山高新技术产业区青青草狠狠干街188号

    首页 > 产品中心 > 浓缩机 > 液压马达传动中心浓密机

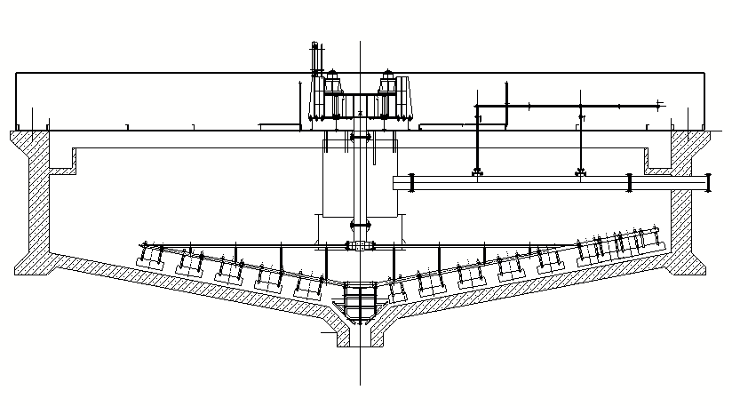
    液压马达传动中心浓密机

    液压马达传动中心浓密机

    产品简介:一款中心液压传动、液压自动提耙的浓密机。

    处理能力:28~1590 m<sup>2</sup>

    产品改进:内径可达100M

    优势特点:

    液压马达传动中心浓密机

    安装维修简单、方便。

    内部构造简洁,便于液压、电控系统等件的布置。

    可通过调节油泵的排油量,来调节耙架的转速,以达到最佳状态。

    可实现自动提耙、降耙。

    24小时青青草视频污版APP下载热线 15311826765

    如果您有任何的问题,请通过以下方式联系青青草狠狠干,青青草狠狠干将给您更多更好的协助!

    产品简介

    浓缩机
    • 主要用于矿山煤泥水或矿浆的澄清和浓缩,以达到脱水的目的。
    • 也可用于化工、冶金等行业进行固液分离的脱水作业。

    产品结构

    液压马达传动中心浓密机主要是由传动装置、桥架、加药装置、入料管、固定筒、布料筒、刮板、轴、长耙、短耙、吊杆、电控装置、液压站、维修用吊架等组成。

    浓缩机

    产品FAQ

    1、液压马达传动中心浓密机的压力不足或无压力的原因是什么?

    (1)溢流阀的调整不当或是溢流阀损坏造成的的压力不足或无压,需重新调整溢流阀或跟换溢流阀。

    (2)油泵过热,导致油泵磨损、损坏,又或是油泵的粘度过低造成,需修理、更换油泵,或是使用推荐粘度的液压轴。

    2、机械振动的原因是什么?

    电机和油泵不同轴或是管道振动引起的机械振动,可通过调整同轴度或紧固加装管卡来改善振动问题。

    技术参数

    液压马达传动中心浓密机技术参数表

    型号 浓缩池内径m 池中心深度m 沉淀面积m2 耙架每转时间min/r 提耙高度mm 处理量t/d 驱动功率kW
    NZY-6 6 3.0~3.2 28 2.5~5.0 350 50~100 3
    NZY-9 9 3.5~3.8 63.6 3.0~5.0 350 120~175 3
    NZY-12 12 3.5~3.8 113 4.0~7.0 350 200~300 4
    NZY-15 15 4.0~4.5 176 5.0~10.0 450 350~400 5.5
    NZY-18 18 4.0~4.5 254 8.0~12.0 450 600~800 5.5
    NZY-20 20 4.0~4.5 314 8.0~12.0 450 800~1000 7.5
    NZY-24 24 4.5~5.5 450 9.0~12.0 450 1000~1300 7.5
    NZY-30 30 4.5~5.5 706 10.0~14.0 450 1500~1800 11
    NZY-38 38 6.5~8.0 1134 15.0~22.0 600 1800~2200 15
    NZY-40 40 6.5~8.0 1256 15.0~22.0 600 2200~2400 15
    NZY-45 45 6.5~8.0 1590 15.0~22.0 600 2400~2800 15
    NZY-53 53 6.5~8.0 2206 15.0~22.0 600 3000~3500 15
    NZY-60 60 7.0~8.5 2827 16.0~50.0 600 3500~5000 18.5
    NZY-75 75 8.0~10.0 4418 20.0~80.0 800 7500~10000 22
    NZY-100 100 8.0~10.0 7853 35.0~80.0 800 10000~15000 30

    相关信息

    

    在线留言

    您可以在下面表格填写您的需求信息,青青草狠狠干的技术与销售人员会尽快与您取得联系。为保证能及时处理您的信息,请务必准确填写您的联系电话!

    • 请您填写详细的需求信息:

    • 如果以上信息无法满足您的需求,请在此填写您的具体需要。

    版权所有 ©山东青青草狠狠干矿业技术装备股份有限公司 2011-2018 鲁ICP备57659680号-115 公安网备案鲁公网安备 37061102001222号
    网站地图